天宫138外开系统窗

  • 室内颜色:

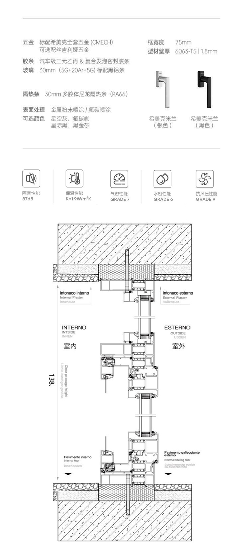
    星空灰、 氟碳咖、星际黑、黑金砂
  • 室外颜色:

    星空灰、 氟碳咖、星际黑、黑金砂
  • 产品描述:

    五金:标配希美克全套五金(CMECH) 可选配丝吉利娅五金 胶条:汽车级三元乙丙&复合发泡密封胶条 玻璃:30mm (5G+ 20Ar+5G)标配黑铝条 隔热条:30mm 多腔体尼龙隔热条(PA66) 特点: 1.注胶角码工艺,不惧恶劣天气:产品角部通过销钉注入进口双组份胶,使得窗体结构强度高,密封性能更优。 2.三道密封结构,让居家环境更舒适:门窗也常常面临强台风、突降暴雨、高温、寒冷等恶劣天气侵扰。所以一道密封性强的门窗可抵挡各种恶劣环境的挑战,还一个安全、舒适、温馨的生活体验。 3.地漏式排水,避免雨水倒灌:地漏式排水结构避免排水孔直对风口,降低雨水倒灌的可能,更直接有效的将雨水排除室外。 4.全套标配希美克进口五金,超大承重175°大开启:兼顾安全与实用,二者并存采用全套全套标配希美克进口五金,超大承重175°大开启。

product details

产品详情

天宫138外开系统窗详情.JPG